Skip to main content
Multiple

Main navigation

  • projects
  • list
  • process
  • about
  • +
Hôtel des monnaies_renovation of 11 social housing
Hôtel des monnaies_renovation of 11 social housing
Hôtel des monnaies_renovation of 11 social housing
Hôtel des monnaies_renovation of 11 social housing
Location

1000 Brussels
Belgium

Type
  • Renovation
  • Social housing
Year
2020-...
Size : landscape + built
7.146 m²
Type of procurment
public
Status
1rst price competition
Collaboration

Fp, GEI, BOCO studio

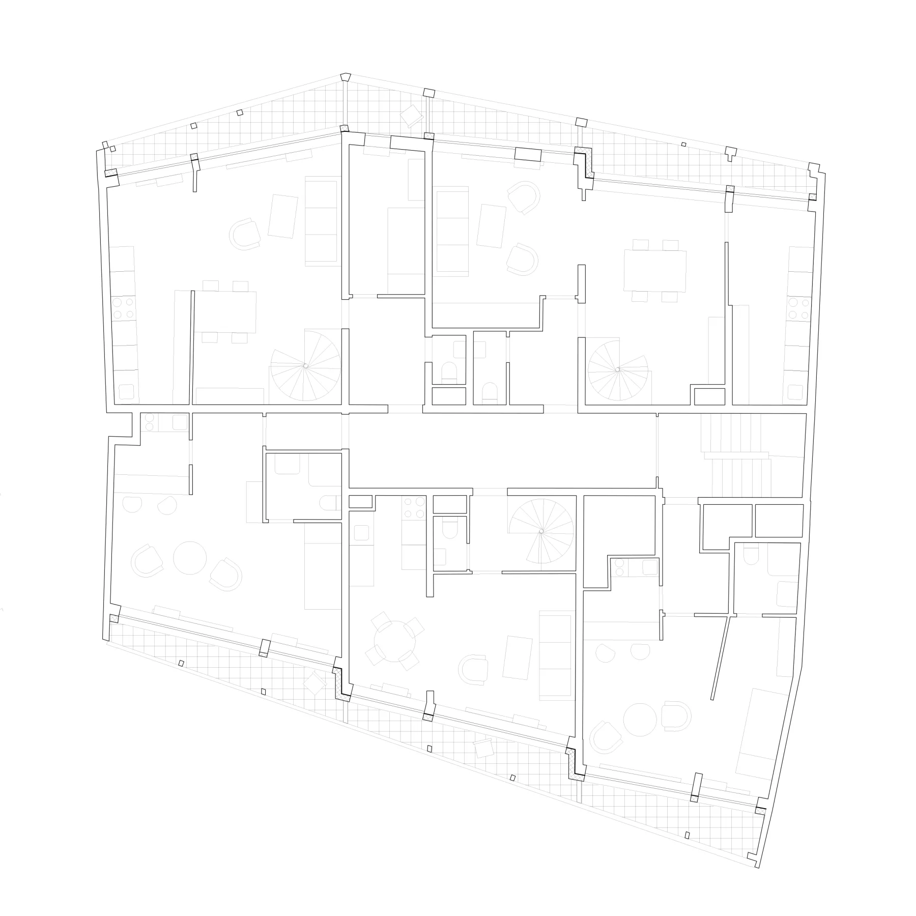
Hôtel des monnaies - Renovation of 11 social housing buildings.

The reflection around this project was carried by a thorough historical reading, allowing to apply an approach respectful of the architectural identity of the various buildings. The work is oriented in the respect of the existing alignments, templates, modenatures, aspects and materialities. Thus, the project participates in the improvement of the architectural identity in an inclusive, environmental and sustainable approach.

In addition to caring for the built heritage, a new redefinition of these places allows the introduction of a new project actor: the landscape. The requalification of the grounds, the setting up of distance for the first floor dwellings, this better securing and improvement of intimacy is set up by the landscape. The private/public limits between the balconies and the street and between the private gardens and the communal garden in the heart of the block are reinforced by means of high ironwork and dense hedges.